Villa neuve de plain-pied (Puget-sur-Argens)

Contemporaine / Moderne
615353
Publié le: 11-07-2025

Un projet familial à deux pas de Fréjus

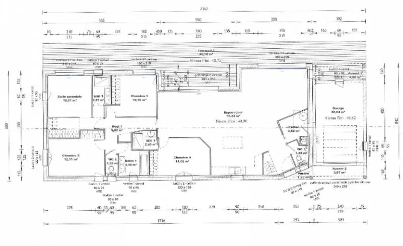
Habitat Concept Réalisation et son partenaire foncier vous proposent la construction d'une villa de plain-pied de 127 m² avec un garage de 20 m², sur une belle parcelle de 849 m² située à Puget-sur-Argens, à quelques minutes de Fréjus.

La maison comprend un grand espace de vie de 56 m², une suite parentale, ainsi que trois autres chambres, une salle de bain, et des WC indépendants.

Confort, qualité et normes RE2020

Construite de manière traditionnelle avec des matériaux durables, cette maison répond aux exigences de la réglementation RE2020.
Prestations prévues : carrelage 60x60 cm dans toutes les pièces, grandes baies vitrées coulissantes dans le séjour, volets roulants électriques, climatisation dans la pièce de vie.

Un cadre sécurisé et contractuel

Ce projet est encadré par un Contrat de Construction de Maison Individuelle (CCMI), avec toutes les garanties prévues par la loi de 1990.

  • Prix de construction : 615 353 €
  • (Hors frais de notaire, mise en service des compteurs et taxes liées au permis de construire)

Superficie : 127 m²

Nbr de chambres : 3

Nbr de pièces : 5

Contemporaine / Moderne

Produits similaires