Maison neuve avec suite parentale et garage (Le Pradet)

Provençale / Traditionnelle
631000
Publié le: 11-07-2025

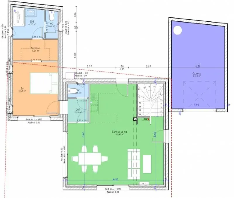
Habitat Concept Réalisation vous propose un projet de construction d’une maison individuelle neuve d’environ 107 m² habitables, sur une parcelle de 415 m² exposée plein Sud, située rue Coubertin, au cœur du centre-ville du Pradet.

Ce bien rare, issu d’un détachement de parcelle (sans copropriété ni charges), se trouve à proximité immédiate des commodités et des écoles.

Une villa moderne aux normes RE2020

Votre future maison R+1 sera bâtie de manière traditionnelle avec des matériaux de qualité et répondra aux normes environnementales RE2020.
Elle comprend une suite parentale en rez-de-chaussée, deux chambres supplémentaires à l’étage, une pièce de vie lumineuse avec cuisine ouverte, deux WC séparés et un garage intégré.

Des prestations soignées

  • Carrelage 75 cm x 75 cm dans toute la villa
  • Baie vitrée coulissante dans le salon
  • Volets roulants électriques sur l’ensemble des ouvertures
  • Chauffe-eau thermodynamique
  • Climatisation dans la pièce principale

La construction sera encadrée par un Contrat de Construction de Maison Individuelle (CCMI), avec toutes les garanties prévues par la loi de 1990.

Conditions et budget

Le prix affiché est ferme et définitif après la signature du contrat, et s’élève à 631 000 €.
Ce montant n’inclut pas les frais de notaire, l’ouverture des compteurs, la peinture intérieure et les taxes liées au permis de construire.

Superficie : 107 m²

Nbr de chambres : 5

Nbr de pièces : 5

Provençale / Traditionnelle

Produits similaires